联系我们

公司:淄博盖亿化工设备有限公司

手机:13011603077

座机:13011603077

邮箱:1552110064@qq.com

邮编:255000

地址:淄博市滨博高速淄博新区下路口北200米


搪瓷(搪玻璃)设备

所在位置:首页>>产品中心>>搪瓷(搪玻璃)设备

ZK搪玻璃贮罐

更新时间:2023-06-25 点击数:242

联系人:李经理 咨询热线:13011603077

搪玻璃储罐(贮罐)用以存放酸、醇、气体等提炼的化学物质。根据结构分可分为:开式搪玻璃储罐(贮罐)、闭式搪玻璃储罐(贮罐)、卧式搪玻璃储罐(贮罐)等。它是石油、化工、粮油、食品、消防、交通、冶金、国防等行业必不可少的、重要的基础设施,我们的经济生活中总是离不开大大小小的储罐。标准开式搪玻璃储罐(贮罐)规格:50L、100L、200L、300L、400L、500L、800L、1000L、1250L、1500L、2000L、3000L、4000L、5000L等,也可根据用户需要进行非标开式搪玻璃贮罐定做。

 

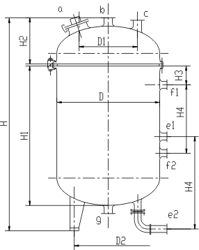
型号

 

公称容积 L

 

实际容积 L

 

尺寸(mm)

管口尺寸(mm)

参考重量kg

D

D1

D2

H1

H2

H3

H4

-H

a

b

c

d

e

f

g

h

ZK-50

50

61.3

400

240

280

520

250

/

/

1080

80

65

65

/

/

/

65

65

150

ZK-100

100

121

500

300

350

660

275

167

700

1245

100

65

65

/

/

2-65

65

65

210

ZK-200

200

240

600

360

420

900

310

193

900

1520

125

65

65

/

/

2-65

65

65

280

ZK-300

300

363

700

420

490

1000

351

178

1000

1661

125

80

65

/

/

2-65

80

65

380

ZK-400

400

469

800

480

560

1000

386

162

1000

1696

150

80

65

/

/

2-65

80

80

480

ZK-500

500

590

800

480

560

1240

386

202

1200

1936

150

80

65

/

/

2-65

80

80

530

ZK-800

800

884

1000

600

700

1210

436

194

1200

1956

150

80

80

80

/

2-65

80

80

765

ZK-1000

1000

1112

1000

600

700

1500

436

184

1500

2248

150

80

80

80

/

2-65

80

80

860

ZK-1250

1250

1391

1200

720

840

1330

486

188

1300

2128

200

80

80

80

/

2-65

80

80

1020

ZK-1500

1500

1674

1200

720

840

1580

486

238

1500

2378

200

100

80

80

/

2-65

100

80

1120

ZK-2000

2000

2219

1300

780

910

1780

511

224

1700

2603

400×300

100

80

80

/

2-65

100

80

1470

ZK-3000

3000

3336

1450

870

1015

2140

559

261

2000

3011

400×300

125

100

100

/

2-65

125

100

1970

ZK-4000

4000

4450

1600

960

1120

2340

606

210

1300

3258

400×300

125

100

100

2-65

2-65

125

100

2560

ZK-5000

5000

5560

1600

960

1120

2890

606

193

1600

3808

400×300

125

100

100

2-65

2-65

125

100

2910

 


备案号:鲁ICP备19014810号-4;鲁ICP备19014810号-3   免责声明

Copyright © 2018-2020 淄博盖亿化工设备有限公司 All Rights Reserved.

淄博盖亿化工设备有限公司  地址:淄博市滨博高速淄博新区下路口北200米  电话:13011603077 手机:13011603077

更多惊喜扫一扫